Dispozitiv ridicat butoaie

Fabricat in Europa

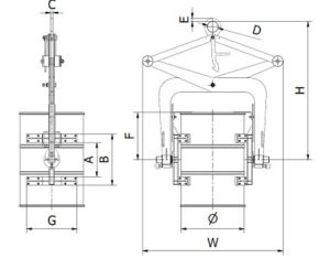
Clemă automată pentru butoaie este proiectată pentru transportul butoaielor și rotirea pentru golirea acestora.

Respectă prevederile Directivei 2006/42/CE, privind echipamentele tehnice.
Marcaje pe produs: sigla producătorului, marcaj CE, sarcina de lucru, seria, anul fabricației.

Brand

Mipromet

Descriere

Descriere

Dispozitiv ridicat butoaie, capacitate 500 kg, diametru butoi 595- 600 mm.

Variante dispozitiv ridicat butoaie

Sistem manevrare butoaie

Cod WLL Diametru butoi Dimensiuni [mm] Masa
[kg] [mm] A B C D E Gama reglaj F G H max. W max. [kg]
DRB 0,5 500 595-600 320 480 20 100 30 390-540 (50mm pas) 474 1295 1369 125
Partener: Mipromet
Mipromet este o companie poloneză cu o experiență de peste 30 de ani în producția de echipamente de ridicat sarcini: macarale portal mobile și fixe, macarale pivotante pe pilon sau consolă, grinzi de ridicare, clești de ridicare, atașamente pentru stivuitor. Procesul de proiectare este realizat în conformitate cu Directiva Mașini și standardele europene în vigoare.
Cere oferta