Lift de șantier pentru materiale și persoane 350/500 kg, max. 3 persoane, 120m
Ascensor pentru ridicat atât materiale, cât și personal, recomandat în special pentru lucrul în spații înguste.
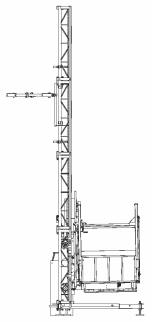
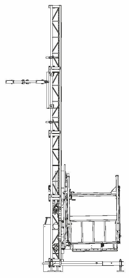
Platforma de ridicare se deplasează pe un catarg, și este acționată de un troliu cu pinion și cremalieră.
Montaj rapid, ce poate fi efectuat de doar două persoane cu pregătire.
- Capacitate portantă: 350/500 kg (monofazic/trifazic)
- Înălțime maximă de ridicare: 120 m
- Dimensiune platformă: 1.1 x 1.6 m cu înălțimea cuștii de 1,1m
- Viteză de lucru: 12 m/min
- Produs fabricat în Spania.
| Brand |
Camac |
|---|
Descriere
Lift de santier ideal pentru ridicarea de mărfuri și persoane în locuri mai greu accesibile, mai ales pentru lucrări de renovare dar și pentru construcții noi. În ambele situații liftul trebuie ancorat pe un zid solid existent.
Este dotat cu o cabină de dimensiuni reduse pentru se adapta spațiilor înguste.
Oferă maximum de siguranță și robustețe dacă este montat și întreținut de personal instruit și abilitat ISCIR.
Caracteristici principale lift de santier (persoane și materiale)- 350/500kG
- Capacitate portantă: 350 kg (cu electromotor 220Vca, 2.2KW)
- Capacitate portantă: 500 kg (cu electromotor 3x380Vca, 2.5KW)
- Capacitate maximă: 3 persoane
- Înălțime maximă de ridicare: 120 m (coloane multiple de 1,5 metri)
- Dimensiune platformă: 1,1×1,6 m cu înălțimea cuștii de 1,1m
- Viteză de ridicare/coborâre: 12 m/min
- Numărul de opriri conform necesarului
Dotari pentru kitul standard
1 x Coloana 1,5 m galvanizată la cald
1 x Set ancore „U” și bride
1 x Ghidaj cablu electric
1 x Opritor bază/inițial
35 m Cablu electric
1 x Electromotor cu reductor planetar și cremalieră
1 x Grilă anti-strivire
2 x Rampe laterale de acces
1 x Mufă conector electric
1 x Limitator de sarcină
1 x Selector de etaj
1 x Frână de urgență centrifugal-mecanică
Extinderile până la 120 metri se fac secvențial prin
- Coloane suport suplimentare fiecare de 1,5m (max. 79)
- Opritor final coloană (necesar)
- Suporturi ancorare – necesare la fiecare 6 m de coloană
- Bride de ancorare extensibile – necesare la fiecare 6 m de coloană
- Ghidaj cablu electric – necesar la fiecare 9 m de coloană
- Extra cablu electric (peste 35 metri de coloane)
- Opritori pe etaje (necesar)
- Poarta culisanta de podea, cu H 1,1 m, cu lacăt electromecanic (opțional)
- Poarta pe etaj de 1,1m cu 2 lacăte electromecanice (necesar)
- Cutie comandă pt. gard podea cu închidere electromecanică (necesară)
- Carcasă de protecție la sol (opțional)
- Acoperiș de protecție (opțional)
Avantaje
- Ușor de instalat și întreținut, robust;
- Ușor de transportat cu utilaje adecvate;
- Produs din clasa profesională fabricată după normele de securitate și sănătate în UE;
- Consum redus de energie electrică;
- Alimentare monofazată 220Vca/50Hz sau trifazată 380Vca/50Hz funcție de cerere;
- Funcția de oprire de urgență (butonul roșu de pe comanda);
- Frână de urgență centrifugal-mecanică;
- Limitator de sarcină;
- Acces în spații înguste;
- Prevăzut cu limitatoare de cursă funcție de numărul de stații/nivele.
Sunteți în cătarea unui lift de șantier care să ridice doar materiale? Vă recomandăm:

